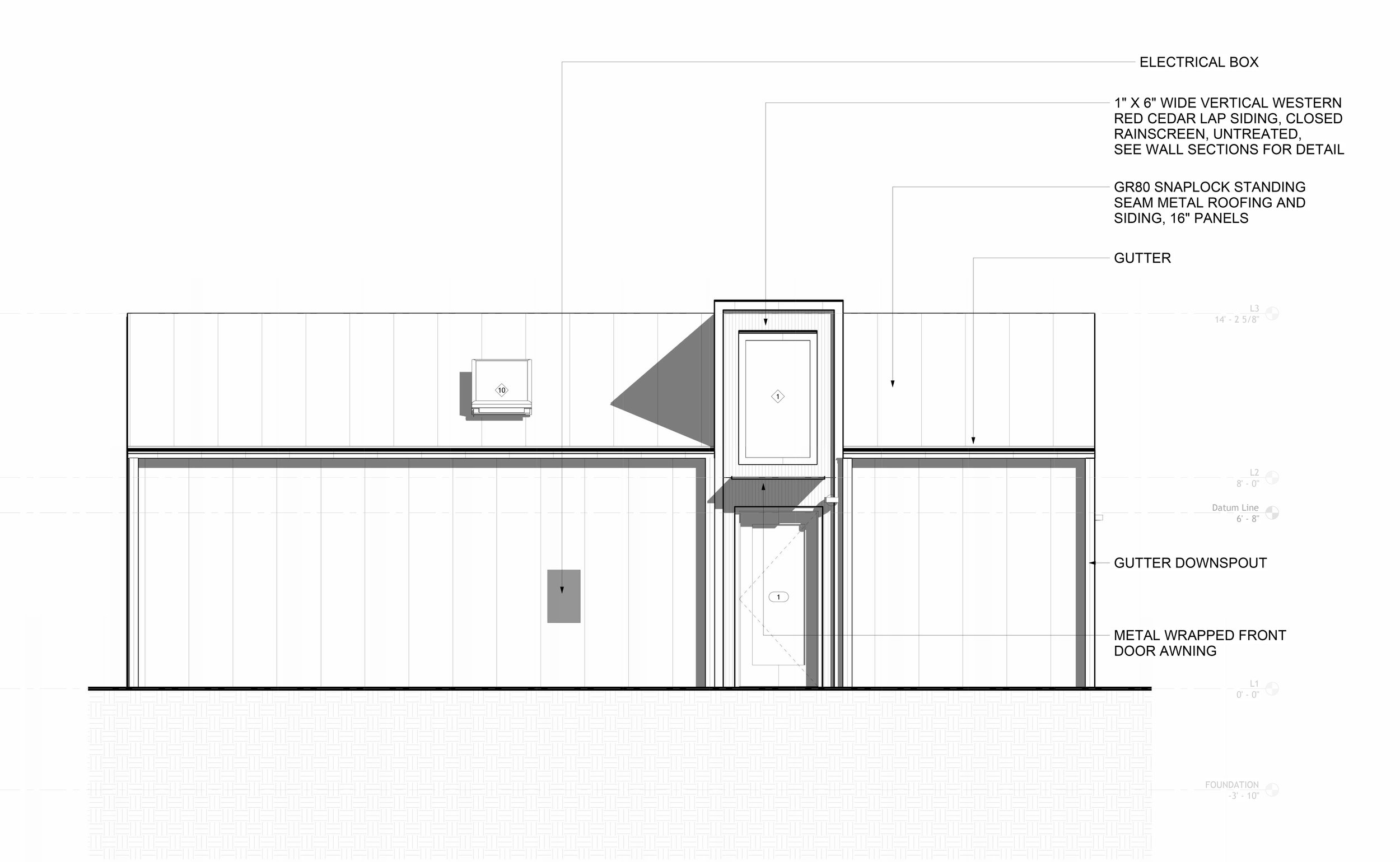
Lupine Flats House 4
House 4 is a collaborative project between five University of Idaho students, COLAB Architecutre + Urban Design, Teal Studio, and the Hills and Rivers Affordable Housing Trust. Starting in January of 2025 we began conceptual design and by the end of the Spring semester we finalized the design and began preparing for construction. The house was completed in October of 2025 when it was open for public viewing.
Project Introduction
Project Type - Residential
Program - Compact Housing
Location - 424 E Palouse River Dr. Moscow, Idaho
Collaborators - Idaho Design Build, Teal Studio, COLAB Architecture
+ Urban Design, and Hills and Rivers Affordable Housing Trust.
Project Team: Samantha Lopez, Rebecca Myers, Connor Reakes,
Simon Scott, Andrew Shearman
The fourth house finds itself within a small neigh-
borhood where each year a different group of five
to six students work to design and build a house. In
the neighborhood there will end up being a total of
six unique homes that are then sold at an affordable
rate first time home buyers. However the Hills and Rivers Affordable Housing Trust retain ownership over
the land.

